The Old Clare Hotel

  • Name The Old Clare Hotel
  • Client Unlisted Collection
  • Country Gadigal
  • Location Chippendale, NSW
  • Year 2011 - 2015

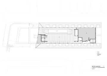
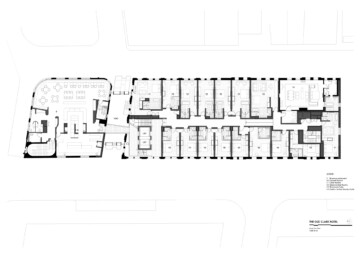
This adaptive re-use project transforms an Art Deco pub on Broadway into a boutique hotel that accommodates 62 rooms, 3 signature restaurants, a bar and rooftop swimming pool.

The hotel stands on the site of the former Carlton United Brewery Administration Building and the County Clare Hotel. The geometric module of these heritage buildings was used for the scale and structure of the new project, melding into the structural rhythm along Kensington Street.

67574D

A dramatic foyer is formed around the internalisation of a former laneway, leading easily from the public to the private, each borrowing from the other.

There is no better way to drive sustainability than to adapt an existing building of value for incorporation in the new.

Here, the basic building fabric and structure was entirely retained, saving carbon tonnes in disposal of waste, production of new materials and transport carbon expenditure.

Highly acclaimed by the architecture profession, this building has also won international awards across the hotel industry, including Conde Naste’s Hot List 100 – Best new Hotels, Asia Hotel Design Awards Architecture of the Year, and Gourmet Travellers Boutique Hotel of the Year.

Awards

2016 Shortlisted; AIA National Architecture Awards; Heritage.
2016 Tourism Accommodation Australia Awards (TAA); Redeveloped Hotel of the Award.
2016 Hospitality Design Awards; Lifestyle Hotel category winner.
2016 Shortlisted; IDEA Awards; Hospitality category.
2016 AIA NSW Architecture Awards; Heritage Award.
2016 Shortlisted; AIA NSW Architecture Awards; Commercial Architecture.
2016 Traveller Australian Hotel Guide Awards; Boutique Hotel of the Year, Gourmet: The Old Clare Hotel, NSW.
2016 Shortlisted; World Interior News, Hotel category: The Old Clare Hotel.
2016 Shortlisted; Restaurant and Bar Design Awards; Australia & Pacific Bar: The Old Clare Hotel.
2016 Asia Hotel Design Awards; Architecture of the Year (Urban), The Old Clare Hotel.
2016 Hospitality Design Awards; Lifestyle Finalist, The Old Clare Hotel.
2016 Shortlisted; Australian Interior Design Awards; Hospitality, The Old Clare Hotel.

Team

Tim Greer, John Chesterman, Jarrod Hughes, Sujata Bajracharya, Matilda Watson, Jo Bastian, Nazia Kachwalla, Belinda Pajkovic, Roger O’Sullivan.

Consultants

Paul Davies Pty Ltd, City Plan Services, Moot Macdonald Huges, WSP, Accessibility Solutions, Frasers Consultant, JBA Planners.

Photographer

Chris Court, Stephen Pierce.

Tim Greer, John Chesterman, Jarrod Hughes, Sujata Bajracharya, Matilda Watson, Jo Bastian, Nazia Kachwalla, Belinda Pajkovic, Roger O’Sullivan. 2015, NSW, Sydney, heritage, adaptive reuse, hotel, hospitality, bar, chippendale

TZG acknowledges the Aboriginal and Torres Strait Islander People, on whose land we work and pay our respects to Elders past, present and future. We are committed to a just, equitable and reconciled Australia and support the Uluru Statement from the Heart.

Always was, always will be.

(Click to close)