FFFFFF

The Athenaeum

  • Name The Athenaeum
  • Client Wenona School
  • Country Cammeraygal
  • Location North Sydney, NSW
  • Year 2015-2017

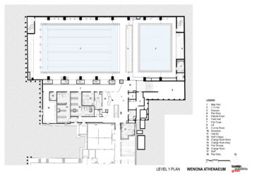
Designed using the progressive education concept of Building as Teacher, the Athenaeum is a complex intervention in an urban school, won by TZG in a Design Excellence competition. It comprises a STEM teaching hub, sports levels with swimming pools, Senior Ecosystem group learning spaces and staff facilities, all on a tight CBD site.

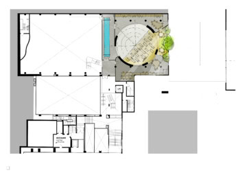
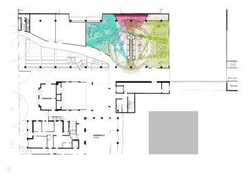
The analysis of Wenona as a campus divided by major roads, with many student activities, gatherings and movements, led us to create strong new multi-level connections.

TZG’s many collaborative workshops with Wenona established priorities for environmental sustainability, collegiate inclusivity a village atmosphere with sunny spaces and an opportunity to learn about future design, engineering and ESD initiatives.

To unify the campus and reconcile height differences, we threaded a communal spine through the site, connecting levels, spaces and buildings from Ted Mack Park to the Wenona Garden.

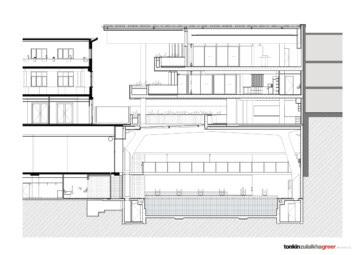
A solution was found to accommodate the number and complexity of required functions within a tight height limit.  Down at the lower ground level, the swimming pools needed sunlight and ventilation.

A system of exposed services and overarching beams combined with suspended floors satisfied height restrictions.

The Athenaeum is styled on a university campus, linking existing Wenona buildings, but also connecting them to the broader community along Miller and Walker Streets. It allows for orientation and navigability to all future buildings and spaces planned for Wenona in future.

Awards

2022 Master Builders Association Award for Private Schools, The Athenaeum Wenona School.
2022 Master Builders Association Merit for Best Use of Concrete, The Athenaeum Wenona School.
2021 The Chicago Athenaeum: Museum of Architecture and Design – International Architecture Award, The Athenaeum Wenona School.
2021 AIA NSW Architecture Awards; Commendation for Education, The Athenaeum Wenona School.

Team

Peter Tonkin, Matilda Watson, Todd Solman, Roger O’Sullivan, Wolfgang Ripberger, Jeremy Hughes, Sujata Bajracharya, Anton Van den Berg, Charlotte Evans, Mona Parvaresh, Alison Osborne, Kevin Lee, Kate Palmer, Lauren Sideris, Ellie Gutman, Alessandro Belgiorno-Nettis, Jasmine Richardson, Simon Dunne, Mark Leong, Jenna Rowe.

Consultants

ACOR Consultants Pty Ltd, AECOM, ARUP, Aspect Oculus, Blackett Maguire + Goldsmith, Collingridge & Associates, Colston Budd Hunt & Kafes, Context Landscape Design, Cundall,  Douglas Partners, Exova, Geoff Ninnes Fong & Partners, Haycroft Duloy, JBA Planning, JMD Design, J&K Group, Mac Group, Medlands, MDA Australia Pty Ltd, Moris Goding, NBRS & Partners, Rygate Surveyors, Stevenson & Associates, SMEC, Taylor Thomson Whitting, Tree Wise Men Australia Pty Ltd, Warren Smith & Partners, Wilkinson Murray.

Photographer

Brett Boardman.

Peter Tonkin, Matilda Watson, Todd Solman, Roger O’Sullivan, Wolfgang Ripberger, Jeremy Hughes, Sujata Bajracharya, Anton Van den Berg, Charlotte Evans, Mona Parvaresh, Alison Osborne, Kevin Lee, Kate Palmer, Lauren Sideris, Ellie Gutman, Alessandro Belgiorno-Nettis, Jasmine Richardson, Simon Dunne, Mark Leong, Jenna Rowe. Wenona, Sydney, NSW, 2017, School, campus, education

TZG acknowledges the Aboriginal and Torres Strait Islander People, on whose land we work and pay our respects to Elders past, present and future. We are committed to a just, equitable and reconciled Australia and support the Uluru Statement from the Heart.

Always was, always will be.

(Click to close)