Tenterfield School of Arts

  • Name Tenterfield School of Arts
  • Client Tenterfield Shire Council & National Trust of Australia (NSW)
  • Country Jukembal, Bundjalung, Kamilaroi
  • Location Tenterfield, NSW
  • Year 2000 - 2004

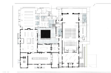
The Tenterfield School of Arts is a complex of buildings located high in the Great Dividing Range in far northern NSW. The buildings were constructed in seven stages, the first of which commenced in 1870. Our design articulates and functionally unifies these seven construction stages around a sheltered central courtyard.

The Original Hall is the location of Sir Henry Parkes’ famous ‘Tenterfield Oration’ in 1889, which was one of the key events leading to the 1901 Federation of the Australian states. The focus of the complex is the Henry Parkes and Federation Museum in the Original Hall and Reading Rooms.

The existing School of Arts buildings were conserved, refurbished and extended as part of the Centenary of Federation.

Our response includes a range of new cultural and community facilities including a library, a 250-seat theatre, and refurbishment of museums and reading rooms.

Team

Peter Tonkin, Julie Mackenzie, Neil Mackenzie, Anne Taylor, Marcia Morley, Victor Young, Scott Falvey, Jeremy Hughes, Roger O’Sullivan, Scott Falvey, Victor Young.

Photographer

Patrick Bingham-Hall.

Peter Tonkin, Julie Mackenzie, Neil Mackenzie, Anne Taylor, Marcia Morley, Victor Young, Scott Falvey, Jeremy Hughes, Roger O’Sullivan, Scott Falvey, Victor Young. Library, cinema, school, adaptive reuse, heritage, Tenterfield, 2004, NSW

TZG acknowledges the Aboriginal and Torres Strait Islander People, on whose land we work and pay our respects to Elders past, present and future. We are committed to a just, equitable and reconciled Australia and support the Uluru Statement from the Heart.

Always was, always will be.

(Click to close)