Ngununggula Southern Highlands Regional Gallery

  • Name Ngununggula Southern Highlands Regional Gallery
  • Client Ngununggula Southern Highlands Regional Gallery
  • Country Gundungurra
  • Location Bowral, NSW
  • Year 2019 - 2021

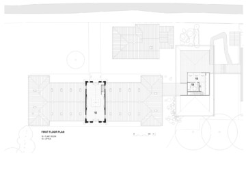
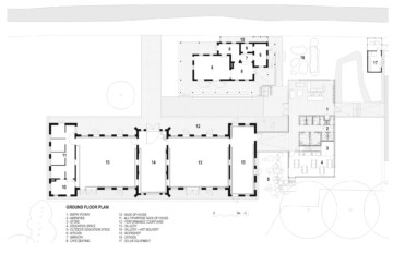
As a result of passionate lobbying by artist Ben Quilty to the National Trust and Wingecarribee Council , the grand old dairy building and vetinary clinic at Retford Park join a new pavilion in this adaptive re-use project to form a contemporary Regional Gallery.

Ngununggula is the local Gundunurra people’s word for ‘belonging’. Ngununggula reflects this sense of belonging, and provides significant exhibitions and artist-led shows and live events. This new community-focussed gallery is aimed at public programs and collaborative workshops with local schools.

Heritage fabric was protected by the design of independent internal walls to house services and seal off external moisture and heat exchange. Where possible, the new walls are held back to reveal the conserved original rendered brickwork, hinting at the past agricultural use.

Adaptive re-use projects are intrinsically more sustainable than new builds. TZG’s design went further, by recycling on-site timber, brick and metal roofing, sourcing local building materials, and having the entire framing structure for the new walls built nearby at Braemar.

The site was levelled without requiring imported fill from off-site. Provision is included for the future installation of a 99kW solar power system with batteries.

Flexible and engaging gallery spaces were designed to the strict requirements for humidity control and security, for exhibitions of works from institutions such as the AGNSW and National Gallery of Australia.

948E8F

Awards

2022, AIA NSW Architecture Awards; Commendation – Creative Adaption Heritage Architecture.
2022, The National Trust Heritage Award Winner; Adaptive Re-use.

Team

Brian Zulaikha, Colebee Wright, Wolfgang Ripberger, Julie Mackenzie, Kevin Lee and Roger O’Sullivan.

Collaborators

TZG Heritage.

Consultants

Richard Cox Surveyors Pty. Limited, BCA Logic, Northrop, Donnelley Simpson Cleary, Acoustic Logic, Bylett + Associates, JILA, Varga Traffic Planning Pty Ltd., Mondan Management Pty Ltd, BCA Energy, Eric Martin & Associates, Ecoplanning, Northrop, Arbosaw, Australian Bushfire Solutions, LEP Planning, Hayman, Kan Hancock from the Art Gallery of NSW, Thermal Environmental.

Contractors

Richard Crookes Construction Pty Ltd.

Photographer

Ben Greaves, Zan Wimberly.

Brian Zulaikha, Colebee Wright, Wolfgang Ripberger, Julie Mackenzie, Kevin Lee and Roger O’Sullivan. gallery, 2021, art, art gallery, Bowral, heritage, adaptive reuse

TZG acknowledges the Aboriginal and Torres Strait Islander People, on whose land we work and pay our respects to Elders past, present and future. We are committed to a just, equitable and reconciled Australia and support the Uluru Statement from the Heart.

Always was, always will be.

(Click to close)