555F69

Sydney Customs House

  • Name Sydney Customs House
  • Client City of Sydney Council
  • Country Gadigal
  • Location Circular Quay, NSW
  • Year 1999

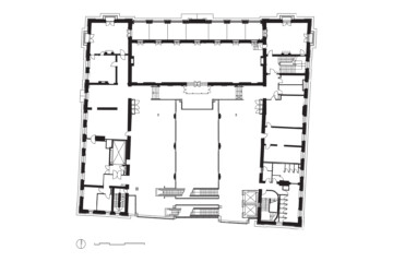
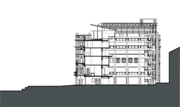
The refurbishment of the historic Customs House at Circular Quay was completed as the major tourism gateway to the City of Sydney prior to the Olympic Games. The six level building houses a variety of different cultural facilities including a city planning model, galleries, a museum, a number of bars and cafes and a restaurant. The project also includes major performance and exhibition spaces with specialised access and acoustic needs.

Awards

2000, RAIA Merit Award, Commendation for Conservation.
1999, Property Council NSW ‘Development of the Year’.

Team

Peter Tonkin, Tim Greer, Neil Mackenzie, Reini Otter, Amelia Kelly.

Collaborators

Jackson Teece Chesterman Willis & Partners

Photographer

Patrick Bingham-Hall, Bart Maiorana.

Peter Tonkin, Tim Greer, Neil Mackenzie, Reini Otter, Amelia Kelly. Circular Quay, Sydney, NSW, 1999, Public, Adaptive reuse, commercial, workplace

TZG acknowledges the Aboriginal and Torres Strait Islander People, on whose land we work and pay our respects to Elders past, present and future. We are committed to a just, equitable and reconciled Australia and support the Uluru Statement from the Heart.

Always was, always will be.

(Click to close)