FFFFFF

Glebe Town Hall

  • Name Glebe Town Hall
  • Client City of Sydney
  • Country Gadigal
  • Location Glebe, NSW
  • Year 2009- 2013

When The City of Sydney acquired the Glebe Town Hall, they engaged TZG to restore the grand and elaborate building and to re-imagine it for contemporary uses. These included events, music, gallery, commercial kitchen, an early Childhood Centre, offices, craft studios, community meeting rooms and support facilities.

Years of neglected water penetration required damaged cement finials, parapets and rendered façade decoration to be repaired. A new slate roof with restored finials and gables completes this 1880’s building.

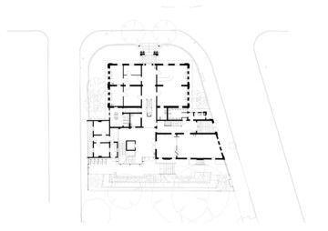
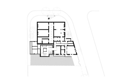
To comply with today’s building code, the rear ad hoc additions were removed and replaced by new unifies circulation. A void for the lift and fire stairs connects to complex interior floor levels and also brings in natural light, with access to the three original grand halls.

The new Stair Hall is simply detailed in steel and glass, concrete and timber. An applied pattern on the glazing provides privacy for the adjoining house. Recalling the patterned pine and cedar and angled arrangement of the original ceilings, several species of plantation hardwood were used in the new timberwork.

The old decommissioned natural ventilation system has been reinstated with zinc roof ventilators and reopened wall vents augmented by automated fans.

Inside the original building, damp walls required refinishing and salt removal. Where painted over, the joinery and ceilings were stripped back to reveal the beautiful original cedar, which was then French polished. Careful investigation by TZG’s heritage office preceded the reconstruction and restoration of the original paint and faux-marble wall finishes.

Now with a simple connection to Lodge Street and Mount Vernon Street, the Glebe Town Hall takes its place in the 21st Century, restored to its former status, and offering new and vital services to the Community.

Awards

2014 The Office of the Valuer General Heritage Award, Australian Property Institute NSW Excellence in Property Awards.

Team

Peter Tonkin, Julie Mackenzie, Bettina Siegmund, Tamarind Taylor, Christian Williams.

Collaborators

TZG Heritage.

Consultants

City of Sydney, Jean Rice, 360 degrees, Glendinning Minto & Associates, City Plan Services, Accessibility Solutions, Shreeji Consultants, Wood & Grieve Engineers, Bodycote Warrington Fire, Acoustic Studio, JD Macdonald, Bluebottle, Cini Little, BDA Consultants Pty Ltd, Project Surveyors.

Photographer

Brett Boardman.

Peter Tonkin, Julie Mackenzie, Bettina Siegmund, Tamarind Taylor, Christian Williams. 2014, Glebe, Sydney, NSW, Town Hall, Public, Heritage, Adaptive Reuse

TZG acknowledges the Aboriginal and Torres Strait Islander People, on whose land we work and pay our respects to Elders past, present and future. We are committed to a just, equitable and reconciled Australia and support the Uluru Statement from the Heart.

Always was, always will be.

(Click to close)