FFFFFF

Glasshouse Cultural Centre

  • Name Glasshouse Cultural Centre
  • Client Port Macquarie - Hastings Council
  • Country Birpai
  • Location Port Macquarie, NSW
  • Year 2002 - 2009

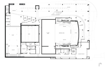
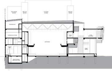
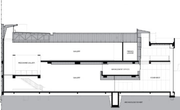
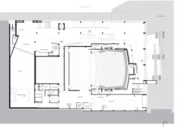
The Glasshouse contains a 600-seat theatre, rehearsal/performance studio, conference facilities, and a large regional gallery, located at the centre of Port Macquarie, a rapidly growing coastal city.

The traditional people of Port Macquarie are the Birpai, whose language has survived, and their lexicon recorded. Heavily reliant on the sea for resources, the Birpai’s totems include the porpoise, the crab, the shark, the bass, sting ray and sea eagle.

The flowing form of its exterior signals the cultural use of the Glasshouse, echoing the movements of the ocean and sky. Wrapped around the sculpted form of the tall auditorium, the naturally ventilated foyers are open and glassy. The Glasshouse relies on the Hastings River for its cooling system, using its water for thermal heat exchange before cooling it back to river temperature and trickling it back to the river flow.

TZG’s design for the Glasshouse established a strong connection to the Pacific Ocean with its ocean views from the broad foyer, emphasising openness and accessibility.

The gallery and theatre share foyer space, allowing some exhibitions to fill the public spaces and, on low visitation days, to be operated by minimal staff. The architectural path from entry to auditorium offers views through different levels and the spaces of the gallery.

A fully equipped proscenium, lyric stage and fly tower, and hydraulically lifted orchestra pit ensure a flexible performance space. All sight-lines have been computer modelled, and the acoustics designed to exacting standards. The Glasshouse’s international standard of quality has led to its regional partnership with the Sydney Opera House.

Awards

2010 Australian Institute of Architecture (NSW) Blacket Prize for Regional Architecture.
2010 Australian Institute of Architecture (NSW) Commendation in the Sulman Award for Public Architecture.
2010 Winner National Commercial Interior Fitout Award, Australian Timber Design Awards.
2010 Winner Central Region Commercial Interior Fitout Award, Australian Timber Design Awards.
2010 Winner, Best Use of Australian Certified Timber, Australian Timber Design Awards.

Team

Tim Greer, Trina Day, Regina Meyer, Roger O’Sullivan, Peter Tonkin, Bettina Siegmund, Elizabeth Muir, Paul Rolfe, John Chesterman, Tamara Frangelli, Jennifer Fetner, Alison Osborne, Ben Daly, Kon Vourtzoumis.

Consultants

Root Projects Australia, Simpson Design Associates, Steensen Varming, ARUP Facade, Warren Smith & Partners, Currie & Brown, ARUP Acoustics, Accessibility Solutions, Cityplan Services, Defire, Entertech.

Photographer

Brett Boardman.

Tim Greer, Trina Day, Regina Meyer, Roger O’Sullivan, Peter Tonkin, Bettina Siegmund, Elizabeth Muir, Paul Rolfe, John Chesterman, Tamara Frangelli, Jennifer Fetner, Alison Osborne, Ben Daly, Kon Vourtzoumis. 2009, Port Macquarie, NSW, Theatre, public

TZG acknowledges the Aboriginal and Torres Strait Islander People, on whose land we work and pay our respects to Elders past, present and future. We are committed to a just, equitable and reconciled Australia and support the Uluru Statement from the Heart.

Always was, always will be.

(Click to close)